apt it

ficha técnica:

Área:
Ano:
Localização:

120m2
2019
leblon / RJ

projeto

Projeto de arquitetura:
Projeto de interiores:

Imagens:

Estúdio Quadra
Estúdio Quadra

Estúdio Quadra

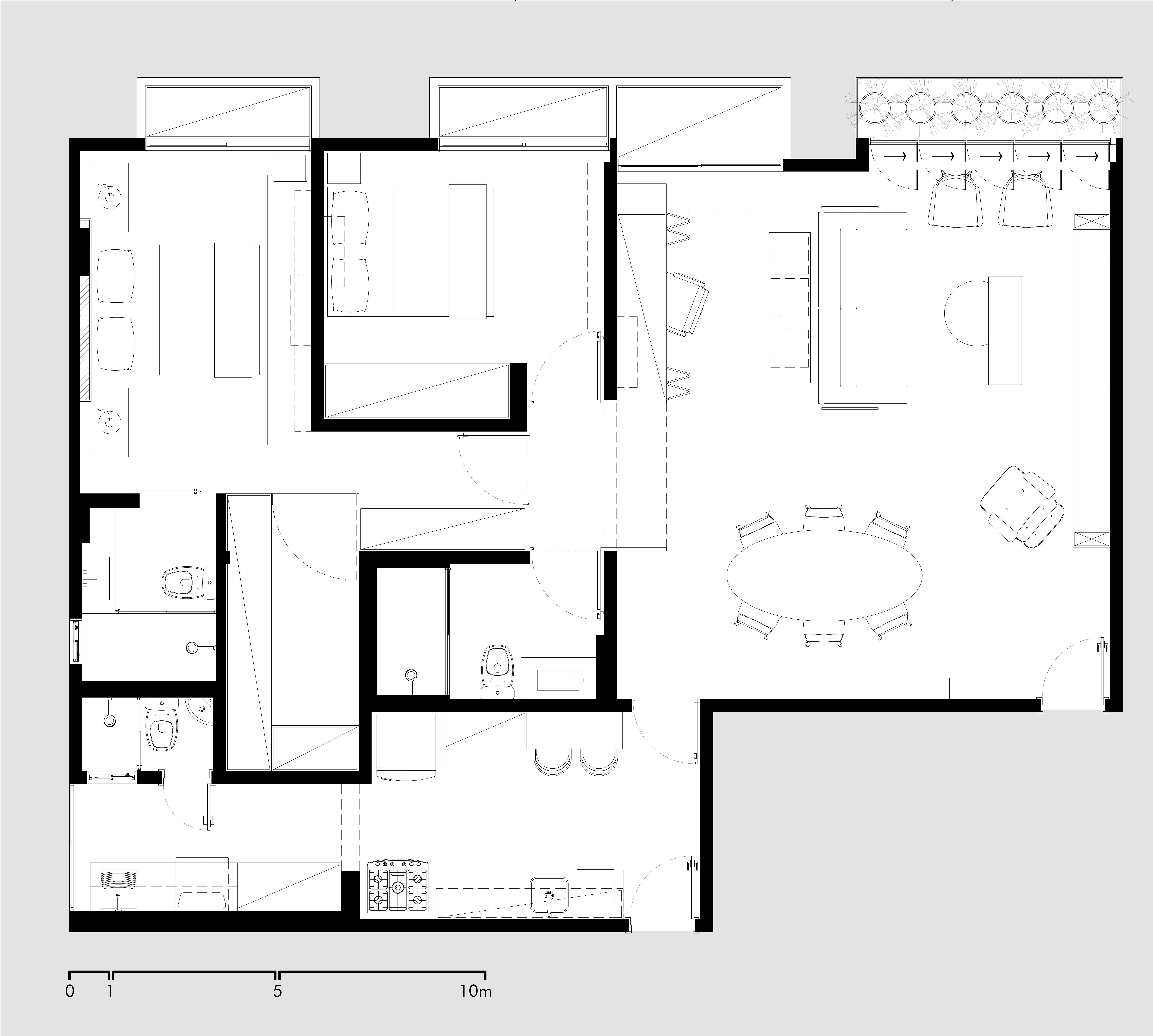
O apartamento de dois quartos, localizado no bairro do Leblon, no Rio de Janeiro, passou por uma reforma completa para atender às necessidades de seu proprietário, um servidor público.

O projeto já carregava traços modernistas em sua concepção, herdados da arquitetura do edifício. Elementos esses que foram respeitados e ressignificados para contemplar uma proposta mais  contemporânea.

A sala de estar foi concebida como um espaço amplo e multifuncional, abrigando também a sala de jantar e uma estação de trabalho. Uma parede de espelhos amplia visualmente o ambiente, ao mesmo tempo em que oculta de forma sutil a entrada principal e o acesso à cozinha.

As portas-painel em MDF, desenhadas sob medida para os quartos, somam-se aos azulejos azuis aplicados em destaque, trazendo identidade e

 

personalidade ao projeto. A madeira, em harmonia com o piso de tacos naturais, traz aconchego a todos os ambientes.

Entre os móveis cuidadosamente selecionados, destaca-se a icônica cadeira assinada por Oscar Niemeyer, que juntamente com o concreto aparente da estrutura, remete a uma atmosfera retrô, equilibrando os princípios modernistas com os detalhes contemporâneos.

O resultado é um encontro perfeito entre passado e presente, onde a essência original do espaço dialoga com novas formas de habitar.

© 2017-2025 Copyright Estúdio Quadra. Todos os direitos reservados. Verifique nossos Termos de Uso.